Проект дома П2-154-СП4
Описание дома
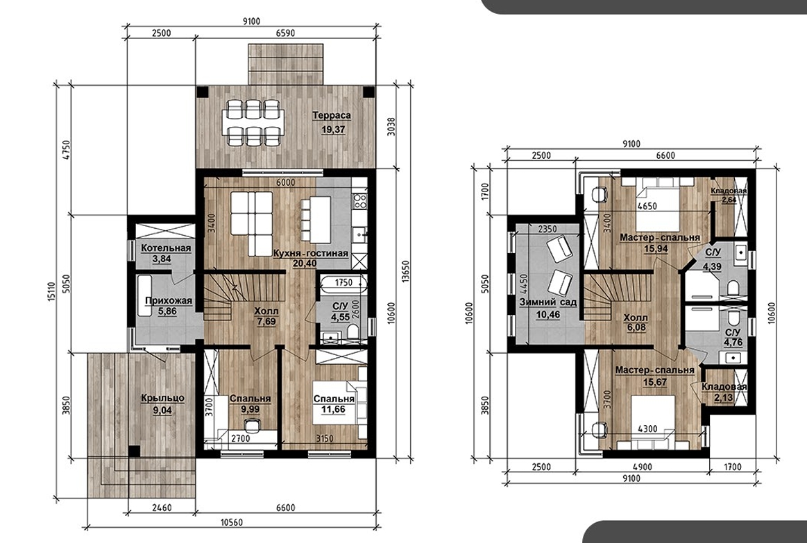
Двухэтажный коттедж с кухней-гостиной, 4 спальнями, 3 санузлами, прихожей, холлом, парадным крыльцом, 2 кладовыми и огромной террасой
Коттедж может быть исполнен в разных стилях наружной отделки и в нескольких цветовых решениях, а также доработан с учётом пожеланий клиентов. Запросить подробную информацию по данному проекту можно, позвонив по телефону горячей линии – 8-800-4444-207
- Жилая площадь (*к жилой площади относятся все помещения, кроме крыльца и террасы) – 126,6 кв.м.
- Площадь террасы – 19,37 кв.м.
- Площадь крыльца – 9,04 кв.м.
- Рекомендуемая длина фасада земельного участка – от 14,7 м
Коттедж может быть исполнен в разных стилях наружной отделки и в нескольких цветовых решениях, а также доработан с учётом пожеланий клиентов. Запросить подробную информацию по данному проекту можно, позвонив по телефону горячей линии – 8-800-4444-207
Характеристики проекта
- Железобетонный фундамент.
- Стены на выбор: газобетон, поромакс, керамзит.
- Железобетонные перекрытия.
- Кровля металлочерепица, водосточная система.
- Отделка фасада на выбор: облицовка кирпичом, комбинированная, декоративная штукатурка.
- Цоколь – искусственный камень.
Строительство и продажа домов в жилых комплексах Анапского и Новороссийского районов
Шаговая доступность
до объектов социальной инфраструктуры
до объектов социальной инфраструктуры
10 минут до ближайшего песчаного пляжа на Чёрном море
Центральное водоснабжение
Зоны отдыха для взрослых
и детей
и детей
Детские площадки
Огороженные участки
Сотрудничаем с крупнейшими банками России
Поможем оформить ипотеку, предоставим рассрочку 0%, воспользоваться материнский капиталом на выгодных для Вас условиях, рассмотрим возможность скидок от 100.000 рублей, за счет сотрудничества с нашей компанией
Все наши коттеджи подходят под участие в льготных ипотечных программах
Сотрудничаем с крупнейшими банками России
Поможем оформить ипотеку, предоставим рассрочку 0%, воспользоваться материнский капиталом на выгодных для Вас условиях, рассмотрим возможность скидок от 100.000 рублей, за счет сотрудничества с нашей компанией
Все наши коттеджи подходят под участие в льготных ипотечных программах
Приезжайте к нам, организуем экскурсию и лично познакомимся
Встречаем в аэропорту и на ж/д вокзале, знакомим с окрестностями, проводим экскурсию
по жилым комплексам, при заключении договора оплачиваем гостиницу.
Работаем с любым регионом России. Часовые пояса для нас - не преграда.
по жилым комплексам, при заключении договора оплачиваем гостиницу.
Работаем с любым регионом России. Часовые пояса для нас - не преграда.
Контакты
Офис работает
Пн-Пт: 09.00 - 19.00
Сб-Вс: 09.00 – 18.00
Пн-Пт: 09.00 - 19.00
Сб-Вс: 09.00 – 18.00
Адрес:
Краснодарский край, 353440, г. Анапа, станица Гостагаевская,
ул. Новороссийская, 67
Краснодарский край, 353440, г. Анапа, станица Гостагаевская,
ул. Новороссийская, 67
Телефон:
8 (800) 444-42-07 - горячая линяя
8 (800) 444-42-07 - горячая линяя
Email: info@invest-anapa.ru